Key Details
Reference
Bedrooms
Bathrooms
Parking
15
1
3
1600
Details
Services
Borehole water
Drainage
Mains drains
Heating
Oil
Catchments
Les Landes Primary, Les Quennevais Secondary
3 Bedroom Bungalow with Storage Facility, St Ouen
£1,600,000 | ST OUEN
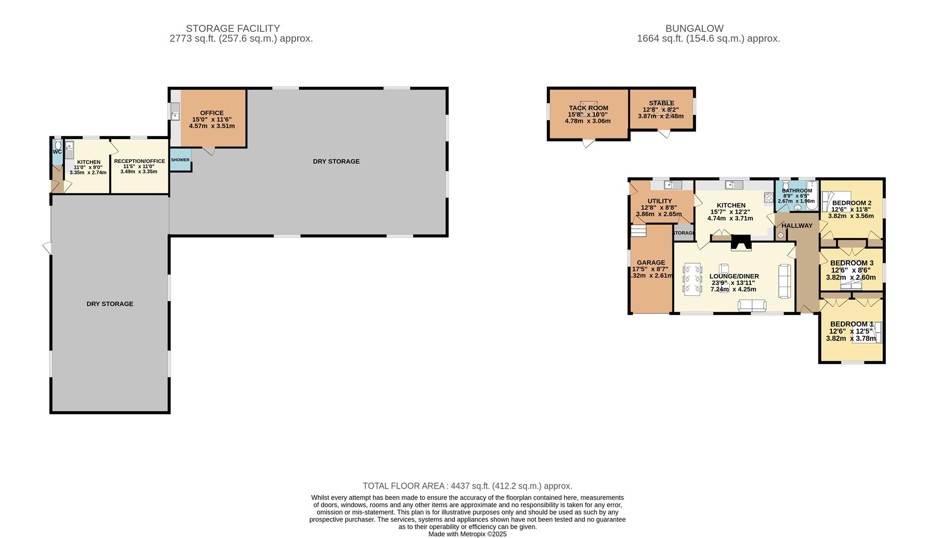
Pinnacle Estates is pleased to present this unique opportunity to acquire a three-bedroom detached bungalow presented in good condition benefitting from large dry storage units set on a generous plot in St Ouen. The property enjoys a peaceful location on the edge of open fields, a 3.73 vergees field is included in the sale providing potential for various uses including equine (previously used for) or agricultural (current classification).
internally the 70's build bungalow has been well maintained and is presented in good condition, needing only interior modernisation. The rooms are all of a generous size and benefit from lots of natural light and views over the surrounding gardens and fields. The lounge / diner boasts a log burner perfect for cozy evenings and adjoins the generous separate kitchen ideal for culinary enthusiasts. Three double bedrooms all with fitted wardrobes, a house bathroom, utility room and garage with attic storage complete the interior.
Externally, the south-facing garden is a delightful feature, offering a lawned area and a patio for outdoor relaxation. A gravelled parking area at the rear accommodates several vehicles, enhancing the property's practicality. Additionally, the grounds include a former horse stable and tack room, which, while currently used for storage, retain some charming original features.
The property includes a substantial storage unit (2773 sq.ft), suited to housing a substantial car collection or could serve as a base for a small business enterprise. This versatile space could also be rented out for extra income. The property further benefits from a 3.73 vergees field, classified for agricultural use, which has previously been utilised for equine purposes. With the right permissions, this field could easily be returned to its former equine classification.
This property presents a unique opportunity for those looking to enjoy a peaceful lifestyle while having the potential for further development or income generation. Contact Pinnacle Estates to arrange a viewing. Email hello@pinnacle.je or call 707707.
Disclaimer: Pinnacle Estates believe these details to be correct, but we do not guarantee their accuracy, nor do they form part of any contract. All photographs, measurements and floor plans referred to are provided as a guide only and should not be relied upon for any purpose. We have not undertaken a detailed survey, nor have we tested appliances, services and fittings.
Three Bedroom Detached Bungalow
Separate 2,773 sq ft Multipurpose Dry Storage Unit
Large 4437 sq. ft Footprint
South facing Garden and Patio
Agricultural Field 3.73 Vergees
Horse Stable and Tack Room
Quiet and Peaceful St. Ouen Location
Plenty of Parking (15+ Cars)
Potential for Expansion or Redevelopment
Get to know:
St Ouen is the most westerly parish is at the very heart of Jersey beach life. Perfect for surfing and sunsets the miles of sand and sea are home to fun seeking locals and beautiful nature reserves. St Ouen offers a range of activities from exploring Martello towers, WW2 fortifications to water sports and golf. Les Landes is the home of Jersey Horse racing and has views over Grosnez castle. St Ouen has one primary school, a selection of shops, pubs and restaurants.
St Ouen


























